WIELORODZINNY BOLESŁAWA ŚMIAŁEGO
ZNAJDŹ SWOJE MIEJSCE
Poznaj naszą inwestycję przy ulicy Bolesława Śmiałego, kameralny budynek zlokalizowany na osiedlu Żarków. Wybieraj spośród funkcjonalnych mieszkań, w naszej ofercie znajdziesz kawalerki, mieszkania dwu- i trzypokojowe oraz mieszkania z antresolami.
NOWY STANDARD ŻYCIA
W naszym budynku powstaną również komórki lokatorskie oraz parking podziemny. Robimy wszystko tak, aby żyło Ci się w pełnym komforcie. Oprócz tego cały kompleks zostanie zamknięty w kształcie czworoboku, co zapewni mieszkańcom większą prywatność. W środku znajdzie się miejsce przyjazne dla dzieci – nowoczesny plac zabaw, chodniki oraz zieleń.
WSZYSTKO NA WYCIĄGNIĘCIE RĘKI
Spokojne i ciche osiedle, z dala od hałasu miasta, a jednocześnie bliskość wszystkich najpotrzebniejszych miejsc, myślisz, że to niemożliwe? U nas to możliwe. W najbliższej okolicy znajdziesz sklepy, szkołę, przystanki autobusowe, usługi oraz skwery zieleni i miejsca rekreacji. Zasługujesz na to co najlepsze i my jesteśmy gotowi Ci to dać – sprawdź co dla Ciebie przygotowaliśmy.
TABELA MIESZKAŃ
| Nr lokalu i klatki | Metraż | Piętro | Ilość pokoi | Powierzchnia dodatkowa | W tym pow. użytkowa antresoli | Aneks kuchenny | Cena | Status | Rzut mieszkania |
|---|---|---|---|---|---|---|---|---|---|
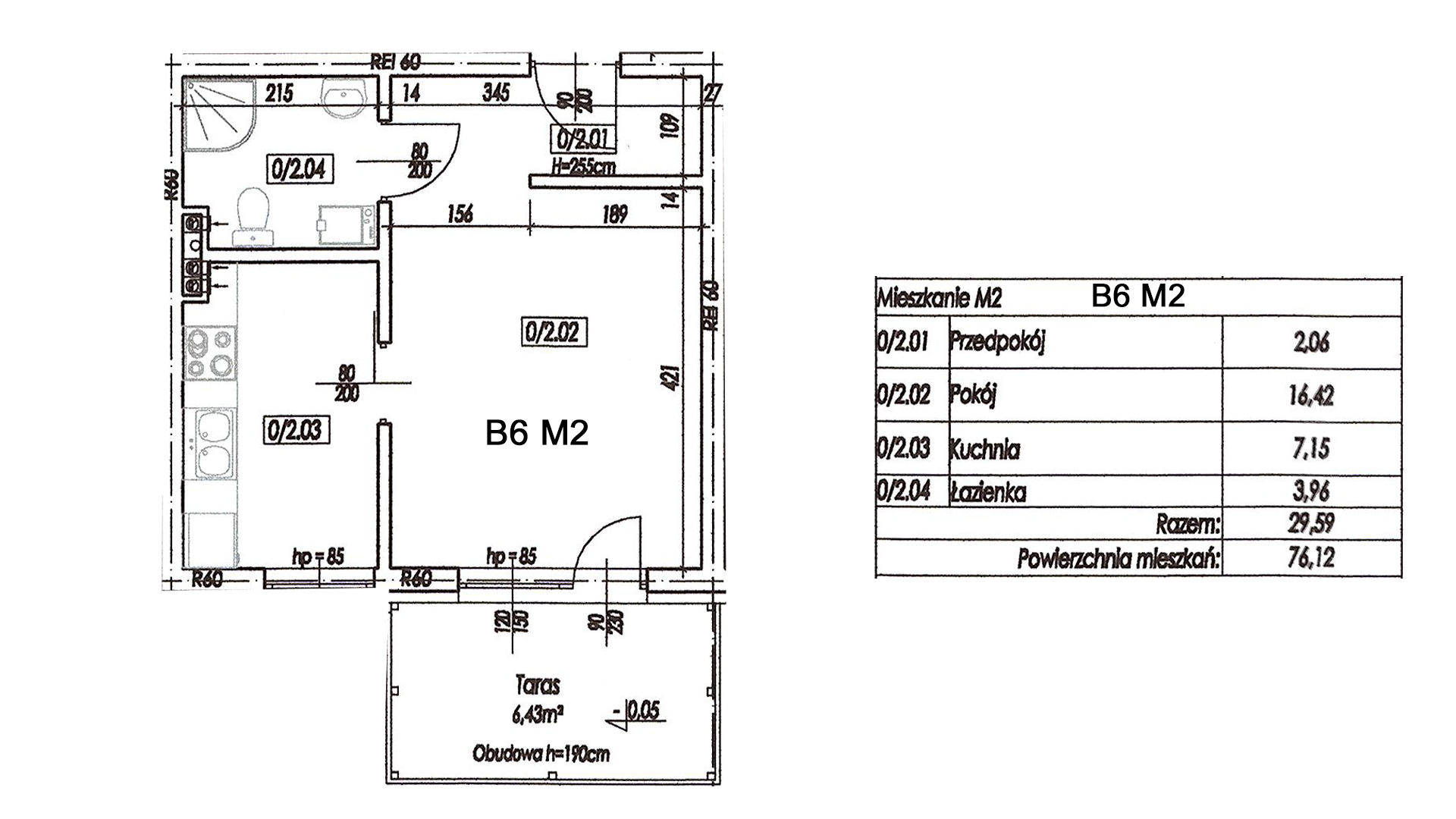
| M2 K6 | 29,59 m2 | parter | 1 | taras: 6,43 m2 | ‑ | nie | zapytaj o cenę | sprzedane | |
| M2 K8 | 29,71 m2 | parter | 1 | taras: 6,2 m2 | ‑ | tak | zapytaj o cenę | rezerwacja | |
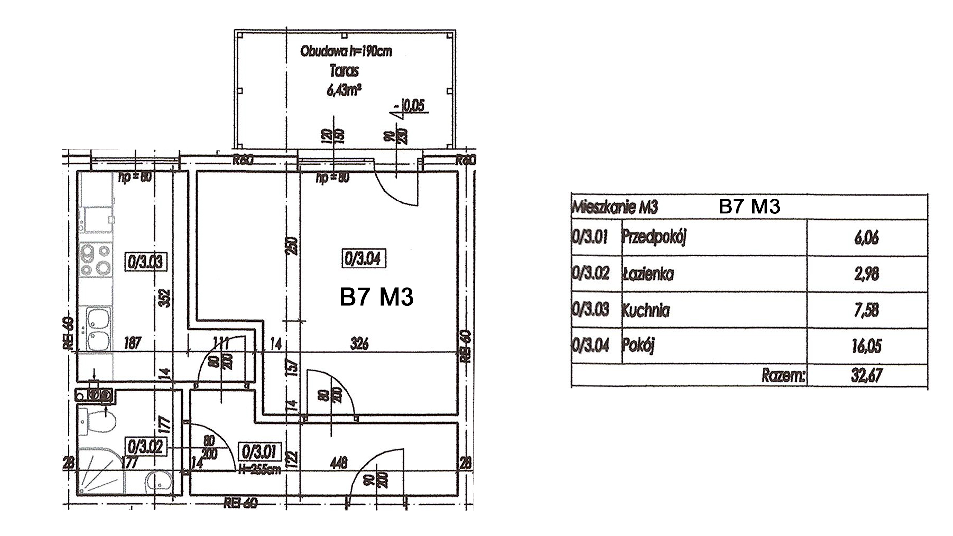
| M3 K7 | 32,67 m2 | parter | 1 | taras: 6,43 m2 | ‑ | nie | zapytaj o cenę | rezerwacja | |
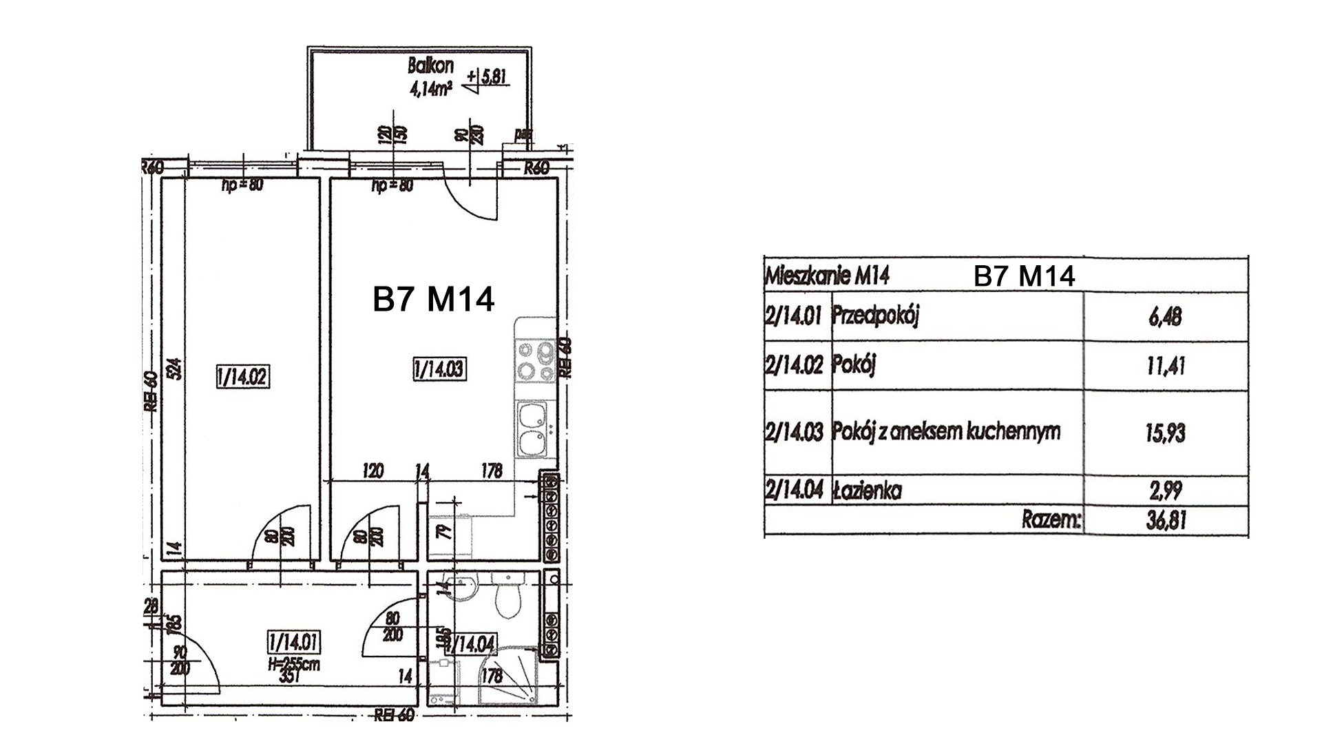
| M14 K7 | 36,81 m2 | drugie | 2 | balkon: 4,14 m2 | ‑ | tak | zapytaj o cenę | wolne | |
| M9 K7 | 36,96 m2 | pierwsze | 2 | balkon: 4,14 m2 | ‑ | tak | zapytaj o cenę | rezerwacja | |
| M4 K7 | 37,09 m2 | parter | 2 | taras: 6,13 m2 | ‑ | tak | zapytaj o cenę | wolne | |
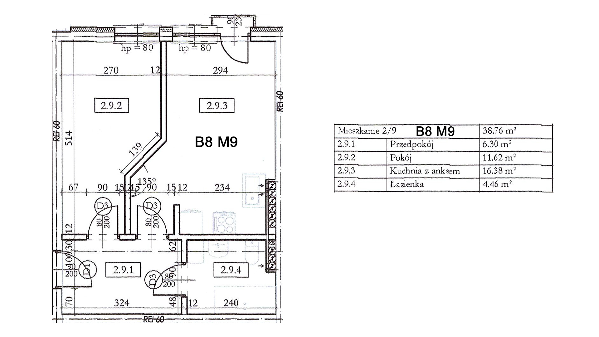
| M9 K8 | 38,76 m2 | drugie | 2 | brak | ‑ | tak | zapytaj o cenę | wolne | |
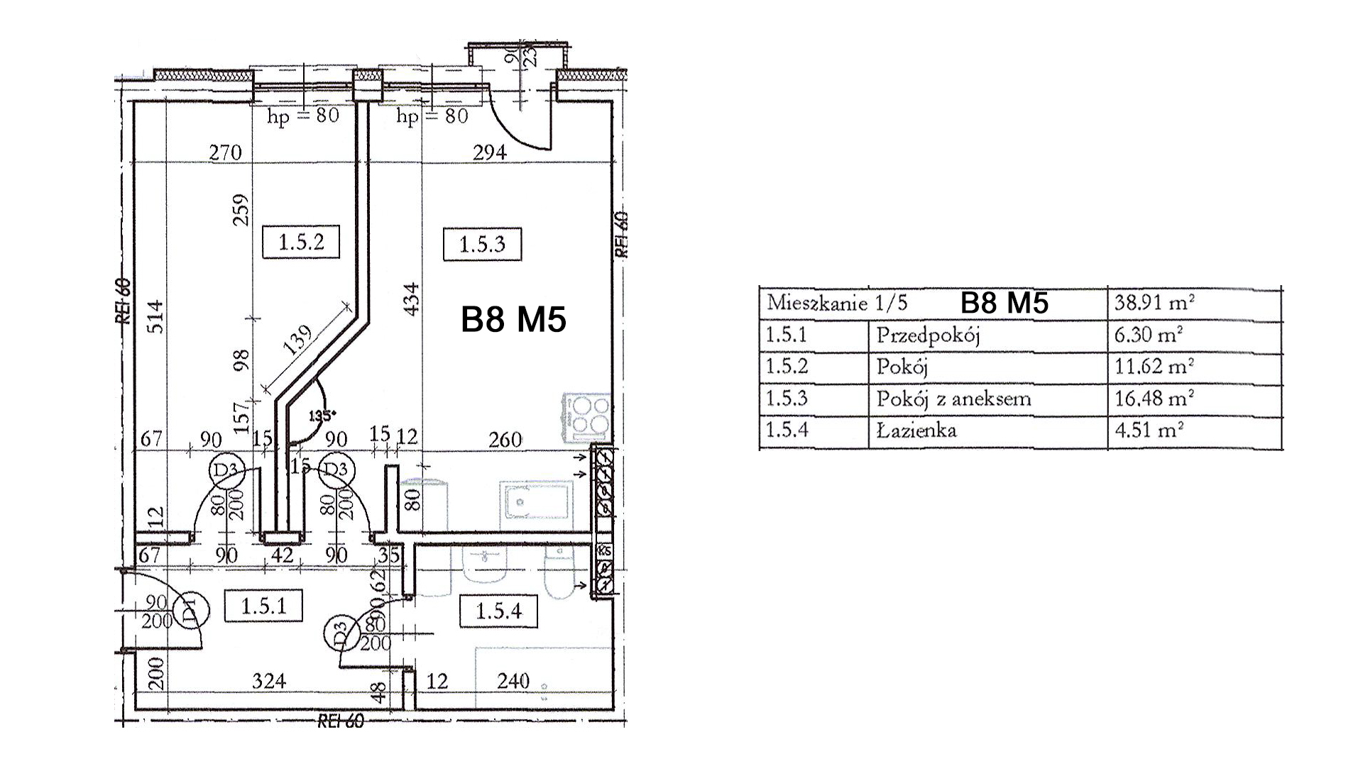
| M5 K8 | 38,91 m2 | pierwsze | 2 | brak | ‑ | tak | zapytaj o cenę | sprzedane | |
| M1 K8 | 39,06 m2 | parter | 2 | brak | ‑ | tak | zapytaj o cenę | wolne | |
| M13 K7 | 40,14 m2 | drugie | 2 | balkon: 4,14 m2 | ‑ | nie | zapytaj o cenę | wolne | |
| M8 K7 | 40,24 m2 | pierwsze | 2 | balkon: 4,14 m2 | ‑ | nie | zapytaj o cenę | rezerwacja | |
| M12 K8 | 41,02 m2 | drugie | 2 | balkon: 4,14 m2 | ‑ | tak | zapytaj o cenę | rezerwacja | |
| M8 K8 | 41,16 m2 | pierwsze | 2 | balkon: 4,14 m2 | ‑ | tak | zapytaj o cenę | sprzedane | |
| M4 K8 | 41,31 m2 | parter | 2 | taras: 6,2 m2 | ‑ | tak | zapytaj o cenę | rezerwacja | |
| M7 K6 | 43,11 m2 | drugie | 2 | balkon: 4,14 m2 | ‑ | nie | zapytaj o cenę | wolne | |
| M4 K6 | 43,22 m2 | pierwsze | 2 | balkon: 4,14 m2 | ‑ | nie | zapytaj o cenę | sprzedane | |
| M5 K7 | 43,33 m2 | parter | 2 | taras: 6,43 m2 | ‑ | nie | zapytaj o cenę | wolne | |
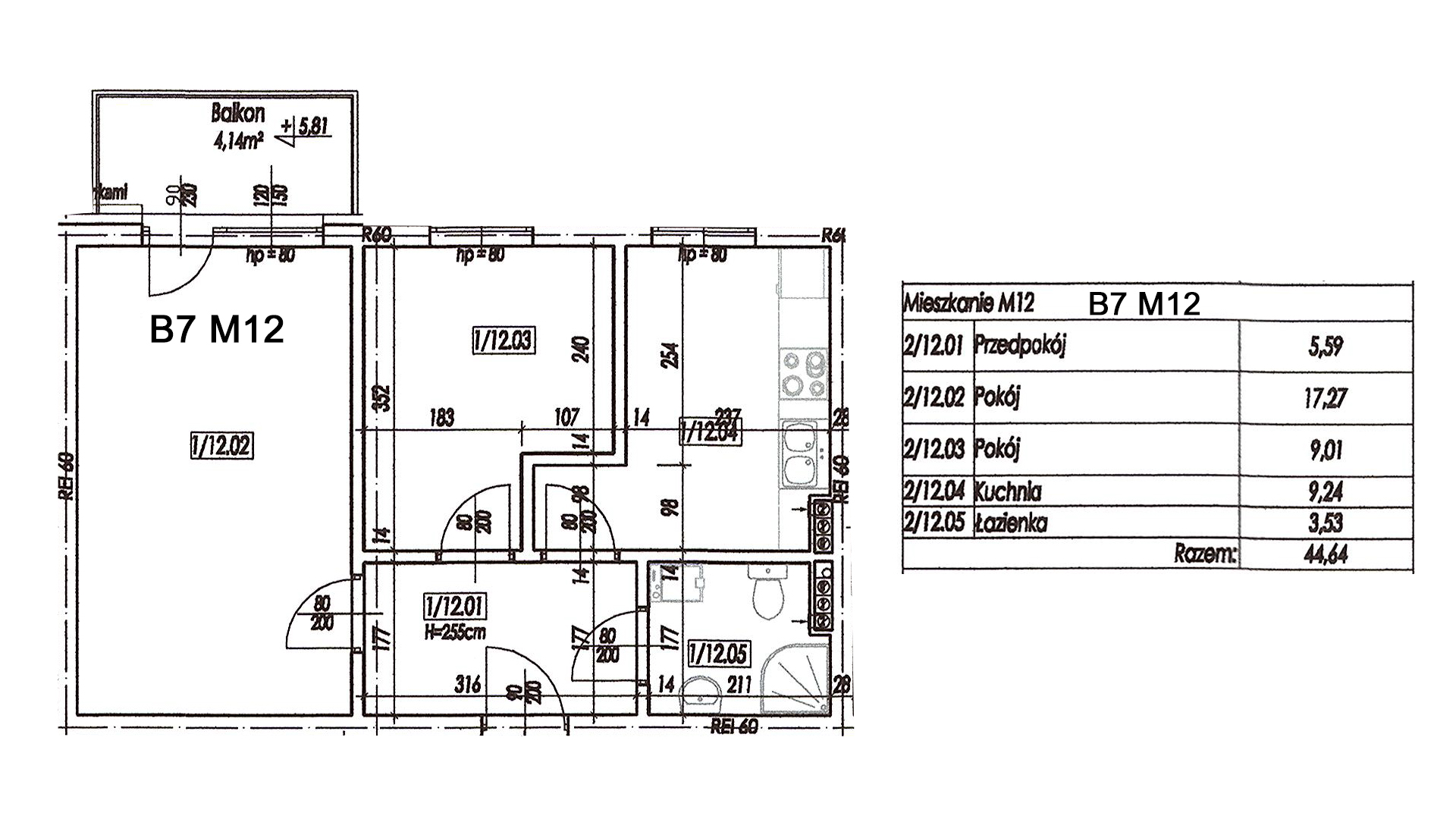
| M12 K7 | 44,64 m2 | drugie | 2 | balkon: 4,14 m2 | ‑ | nie | zapytaj o cenę | wolne | |
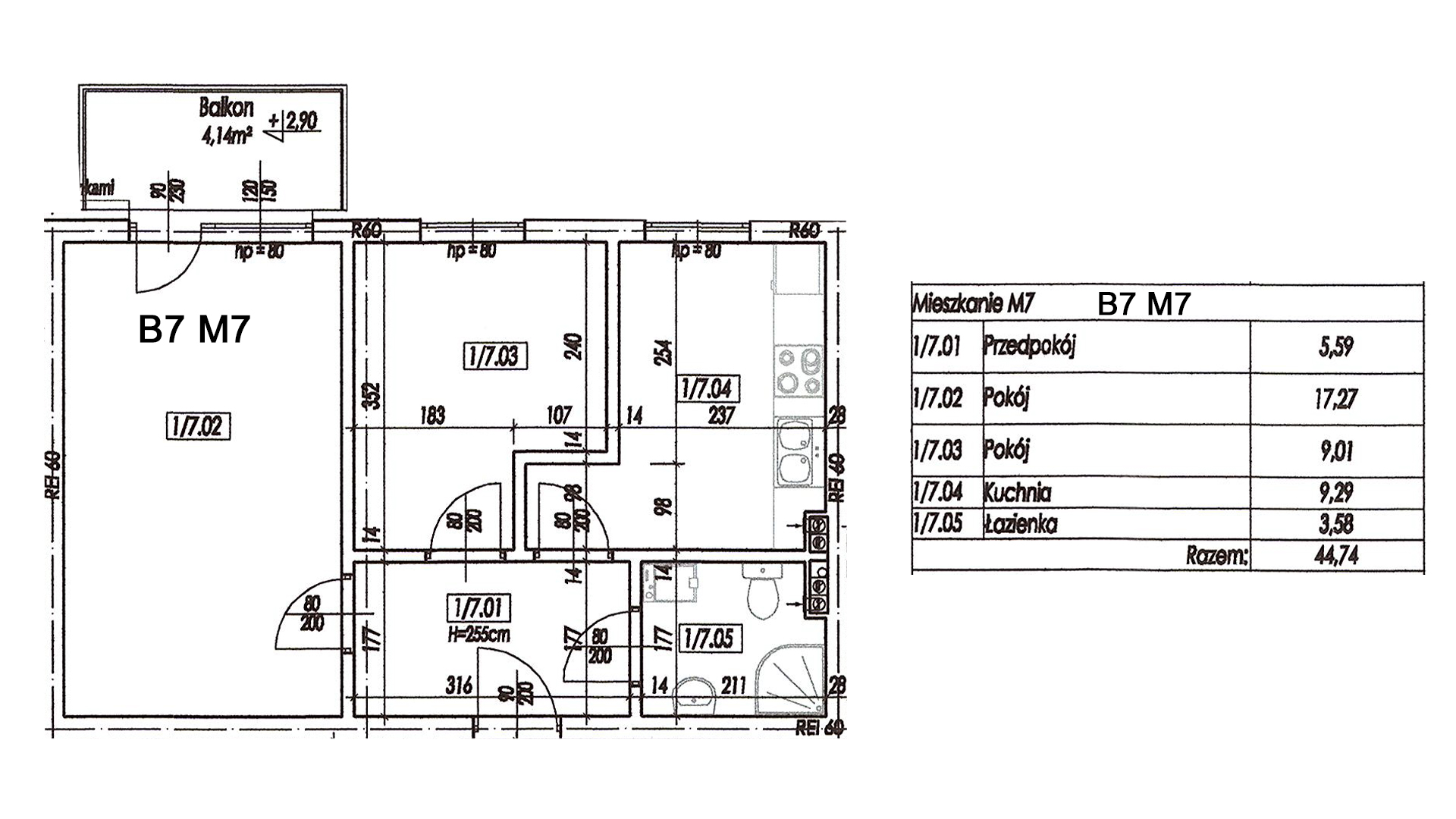
| M7 K7 | 44,74 m2 | pierwsze | 2 | balkon: 4,14 m2 | ‑ | nie | zapytaj o cenę | wolne | |
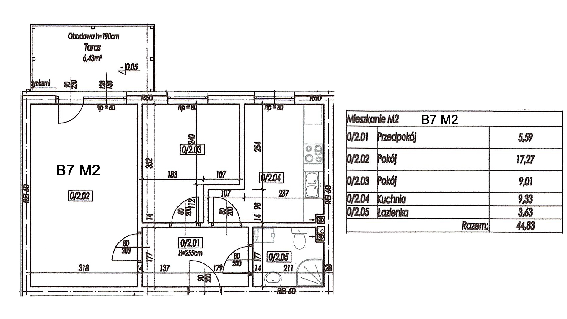
| M2 K7 | 44,83 m2 | parter | 2 | taras: 6,43 m2 | ‑ | nie | zapytaj o cenę | wolne | |
| M10 K8 | 46,09 m2 | drugie | 2 | balkon: 4,14 m2 | ‑ | tak | zapytaj o cenę | rezerwacja | |
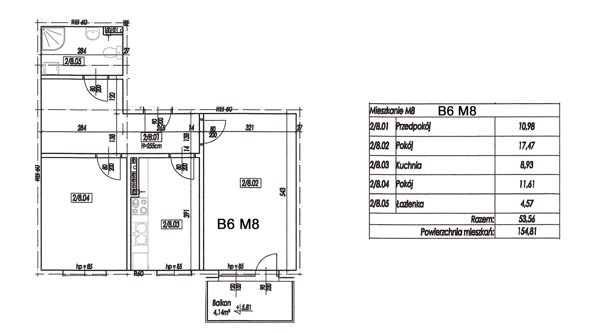
| M6 K8 | 46,24 m2 | pierwsze | 2 | balkon: 4,14 m2 | ‑ | tak | zapytaj o cenę | sprzedane | |
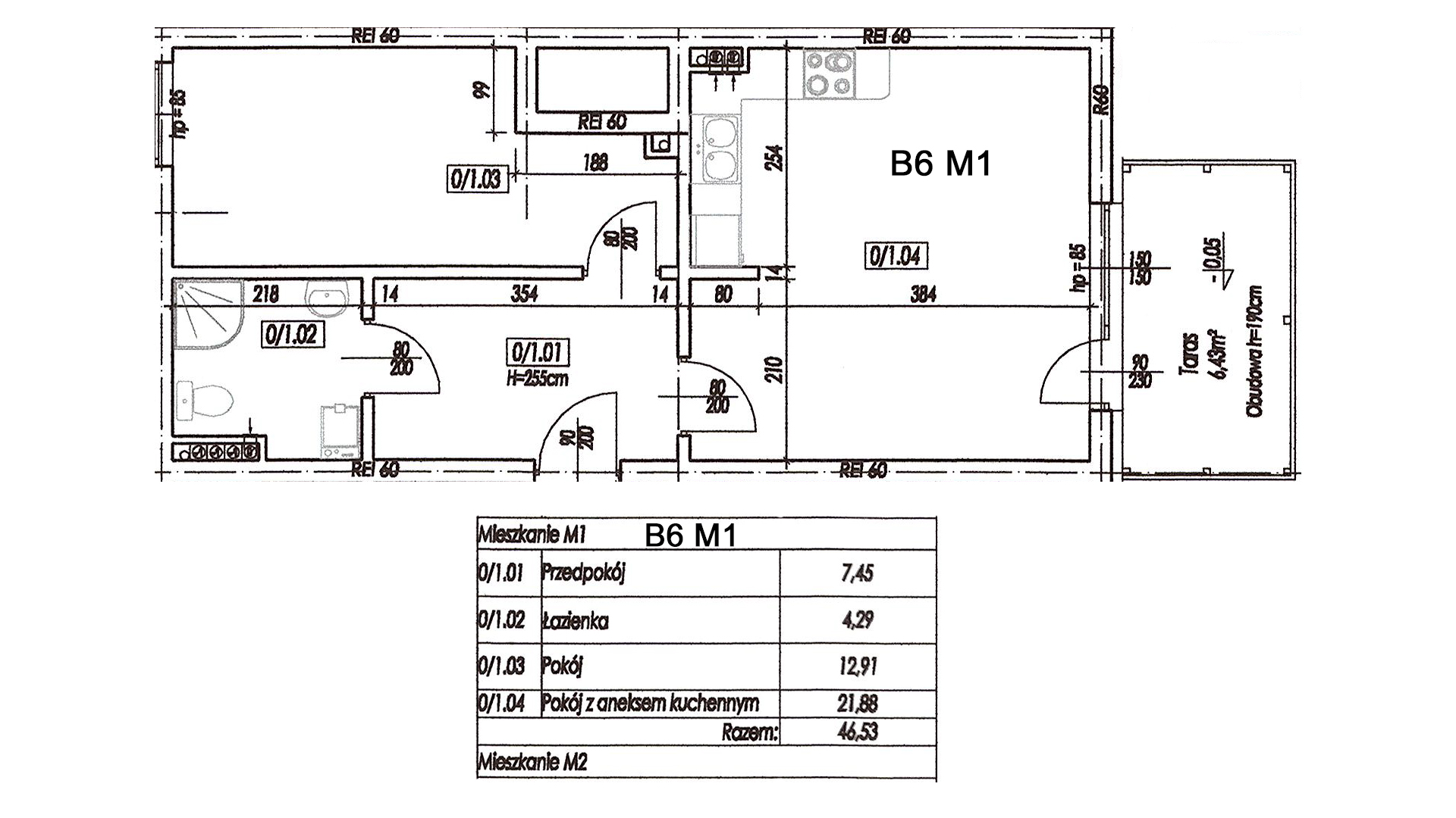
| M1 K6 | 46,53 m2 | parter | 2 | taras: 6,43 m2 | ‑ | tak | zapytaj o cenę | wolne | |
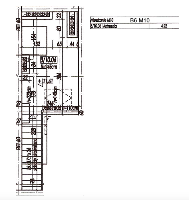
| M10 K6 | 47,25 m2 | trzecie | 2 | balkon: 4,14 m2 | 4,22 m2 | nie | zapytaj o cenę | wolne | |
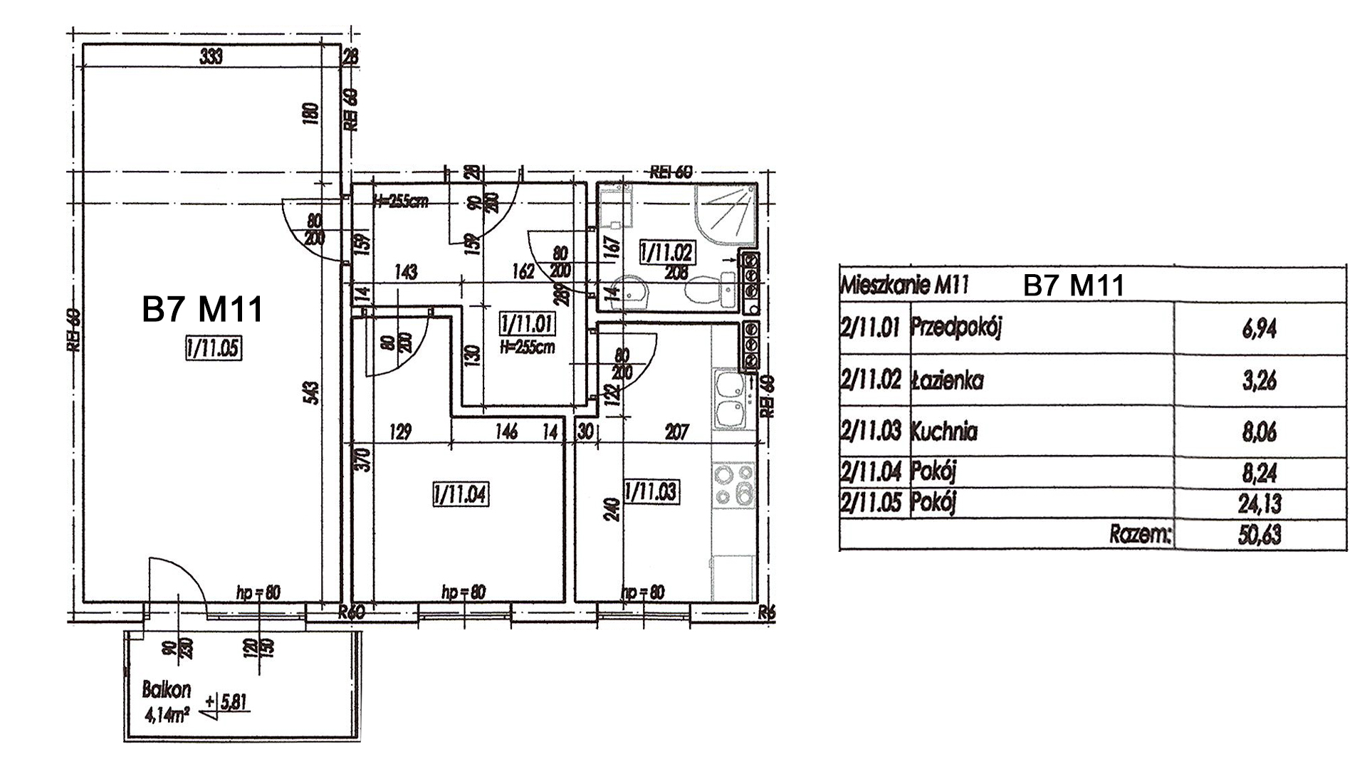
| M11 K7 | 50,63 m2 | drugie | 2 | balkon: 4,14 m2 | ‑ | nie | zapytaj o cenę | wolne | |
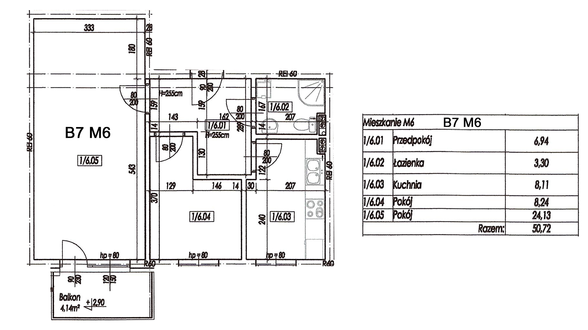
| M6 K7 | 50,72 m2 | pierwsze | 2 | balkon: 4,14 m2 | ‑ | nie | zapytaj o cenę | rezerwacja | |
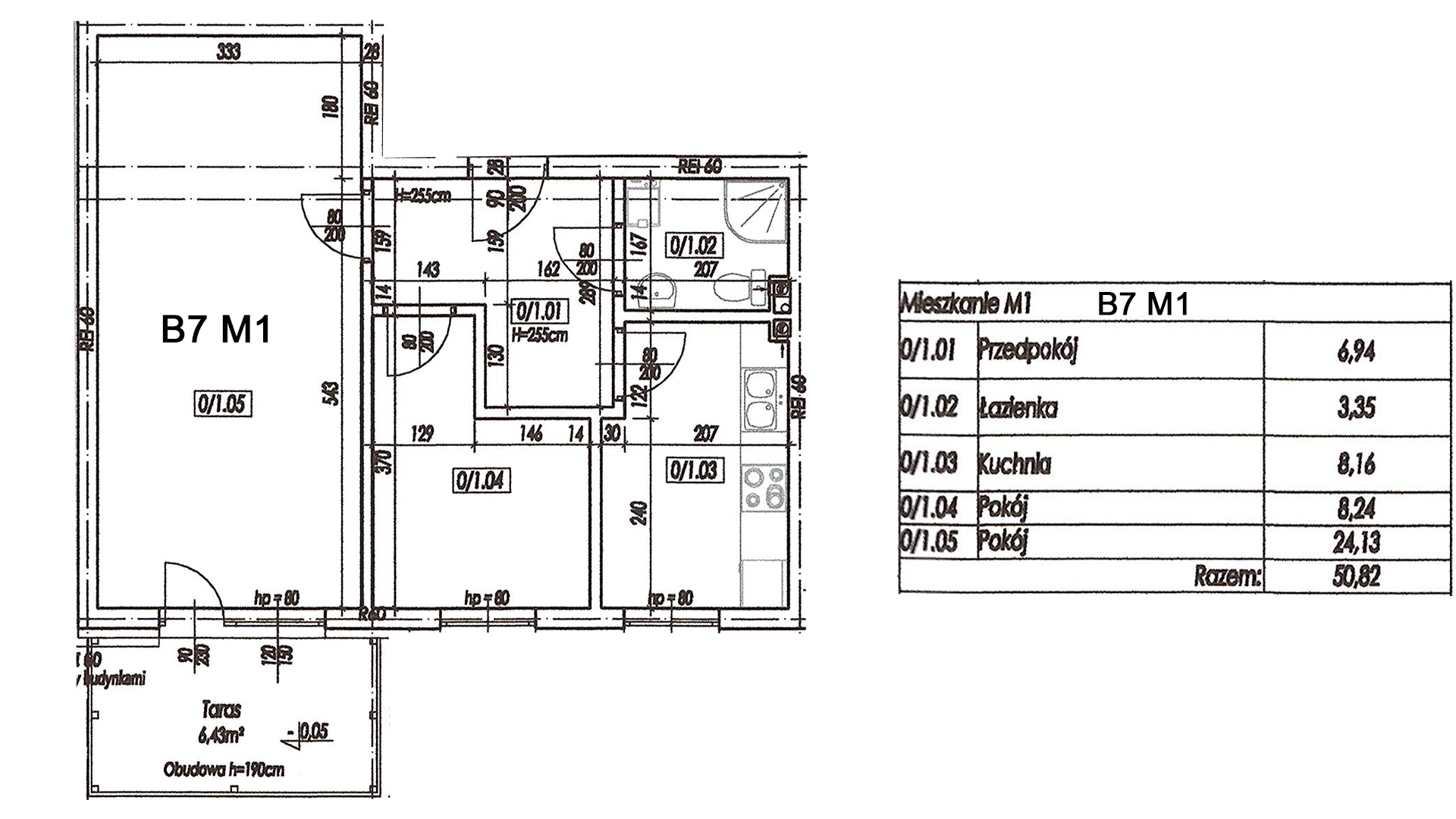
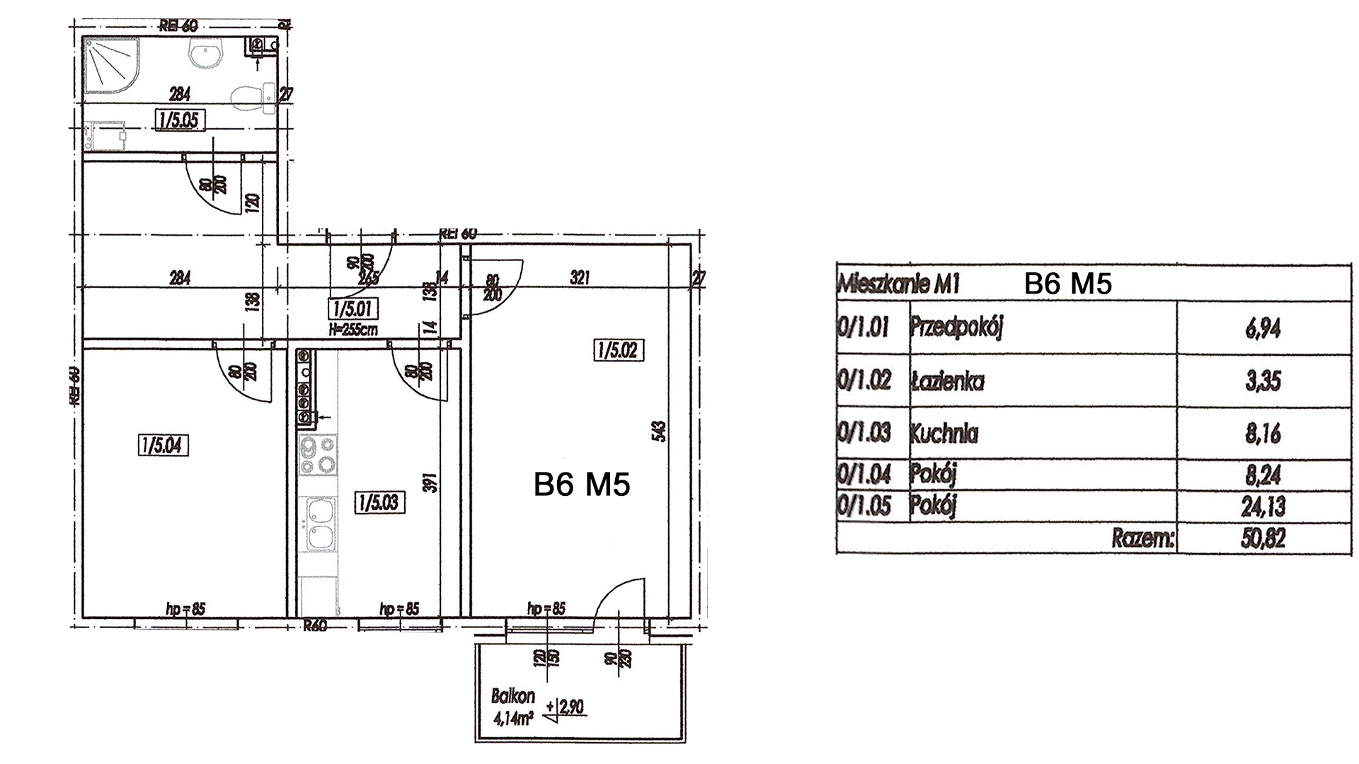
| M1 K7 | 50,82 m2 | parter | 2 | taras: 6,43 m2 | ‑ | nie | zapytaj o cenę | wolne | |
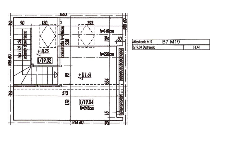
| M19 K7 | 52,13 m2 | trzecie | 2 | balkon: 4,14 m2 | 14,74 m2 | tak | zapytaj o cenę | wolne | |
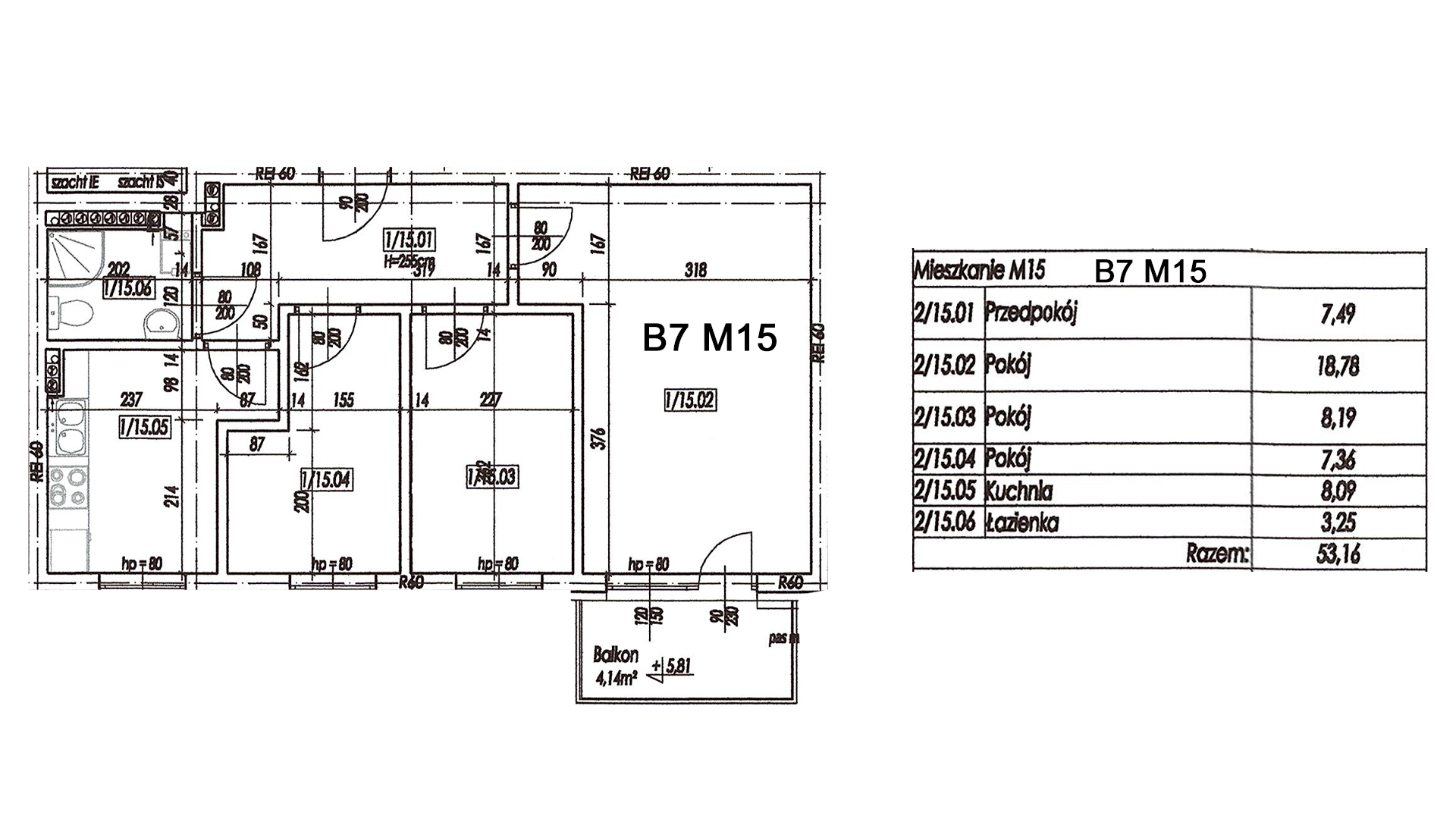
| M15 K7 | 53,16 m2 | drugie | 3 | balkon: 4,14 m2 | ‑ | ne | zapytaj o cenę | rezerwacja | |
| M10 K7 | 53,26 m2 | pierwsze | 3 | balkon: 4,14 m2 | ‑ | nie | zapytaj o cenę | rezerwacja | |
| M8 K6 | 53,56 m2 | drugie | 2 | balkon: 4,14 m2 | ‑ | nie | zapytaj o cenę | rezerwacja | |
| M5 K6 | 53,68 m2 | pierwsze | 2 | balkon: 4,14 m2 | ‑ | nie | zapytaj o cenę | rezerwacja | |
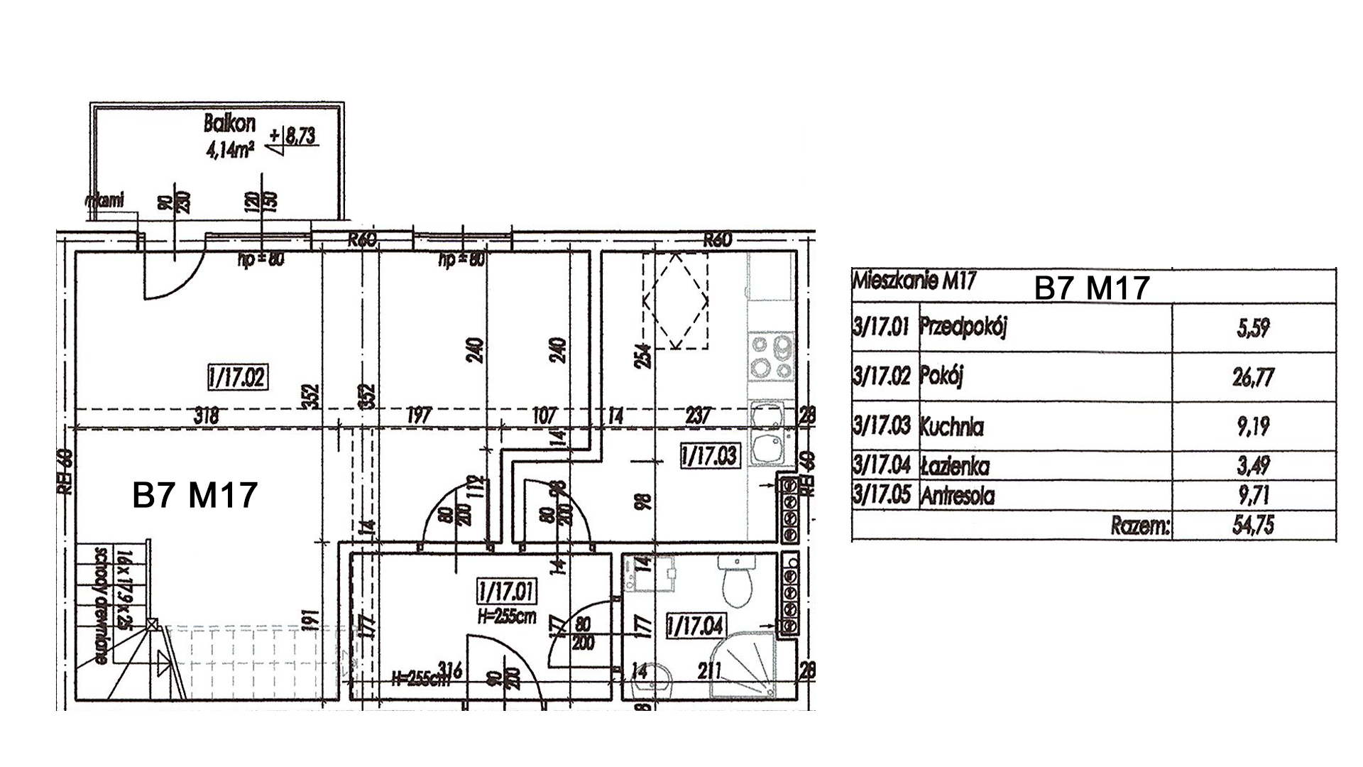
| M17 K7 | 54,75 m2 | trzecie | 2 | balkon: 4,14 m2 | 9,71 m2 | nie | zapytaj o cenę | wolne | |
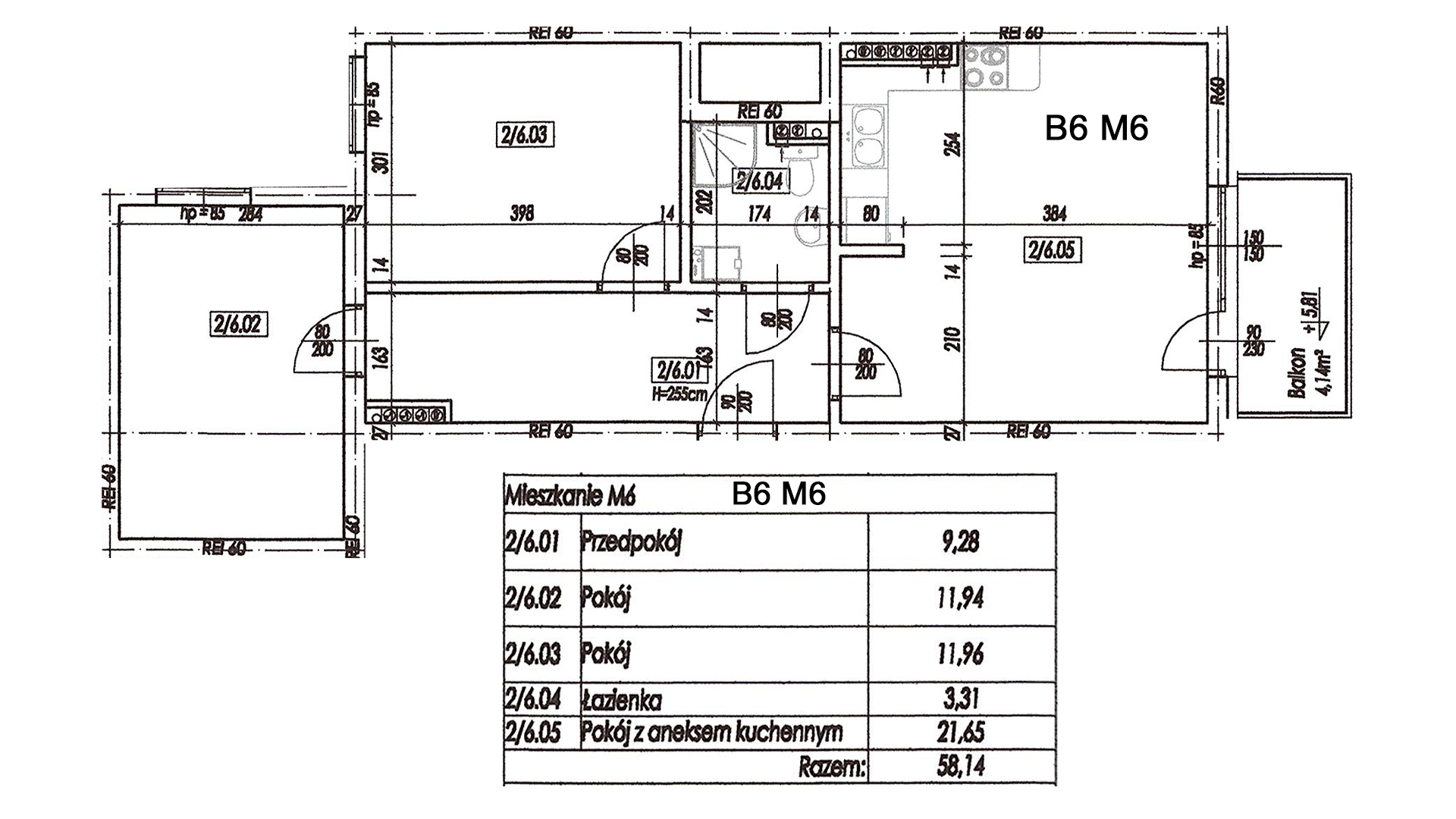
| M6 K6 | 58,14 m2 | drugie | 3 | balkon: 4,14 m2 | ‑ | tak | zapytaj o cenę | rezerwacja | |
| M3 K6 | 58,30 m2 | pierwsze | 3 | balkon: 4,14 m2 | ‑ | tak | zapytaj o cenę | rezerwacja | |
| M13 K8 | 59,38 m2 | trzecie | 2 | brak | 19,89 m2 | tak | zapytaj o cenę | wolne | |
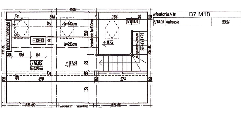
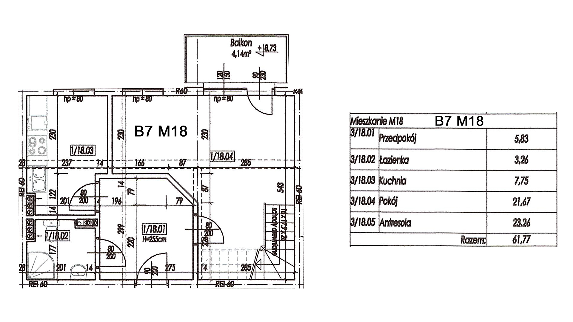
| M18 K7 | 61,77 m2 | trzecie | 2 | balkon: 4,14 m2 | 23,26 m2 | nie | zapytaj o cenę | wolne | |
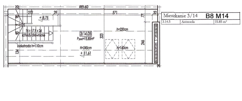
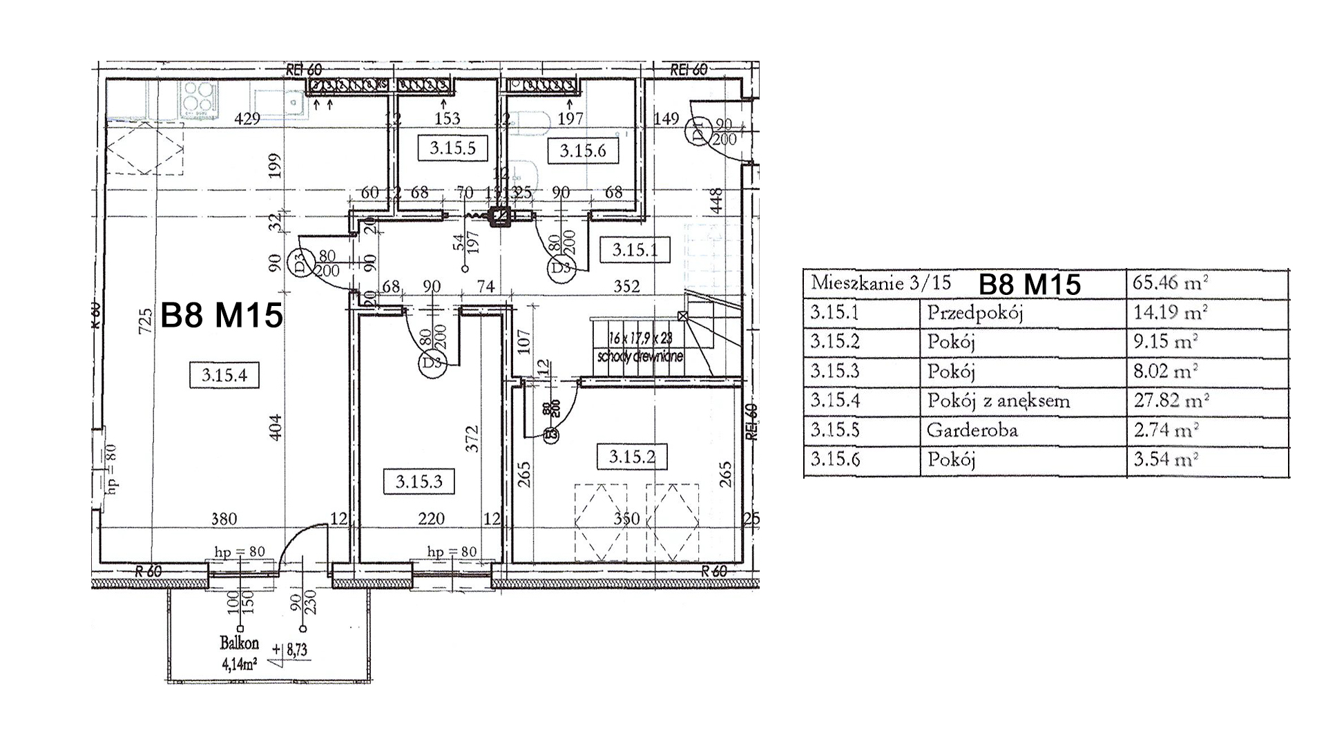
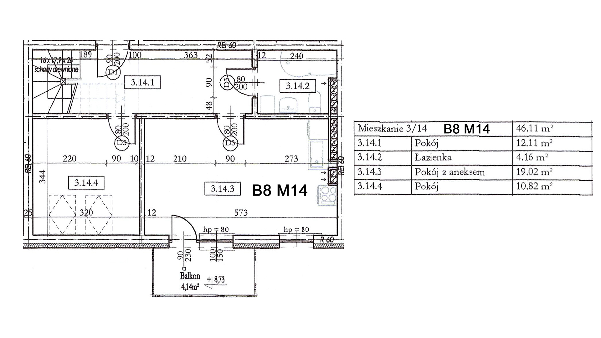
| M14 K8 | 61,96 m2 | trzecie | 3 | balkon: 4,14 m2 | 15,85 m2 | tak | zapytaj o cenę | wolne | |
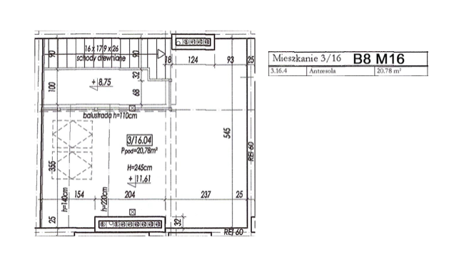
| M16 K8 | 62,90 m2 | trzecie | 2 | balkon: 4,14 m2 | 20,78 m2 | tak | zapytaj o cenę | wolne | |
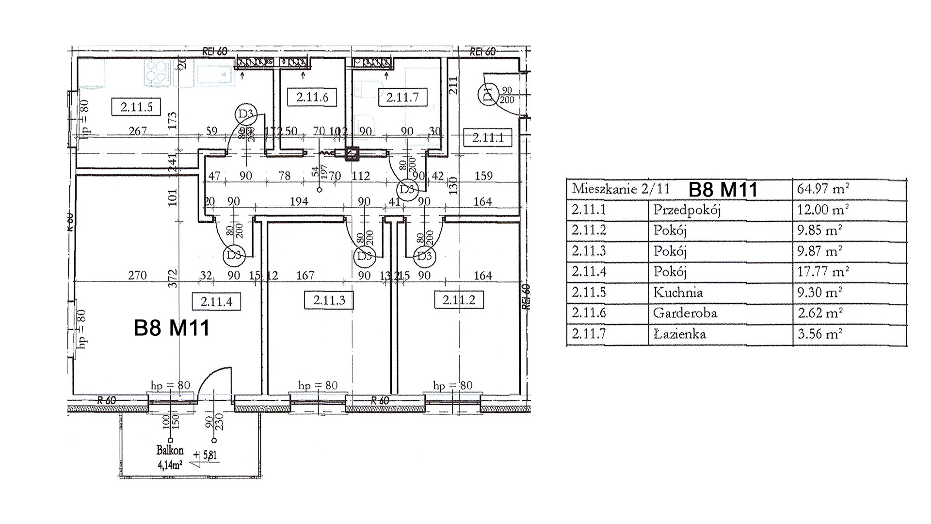
| M11 K8 | 64,97 m2 | drugie | 3 | balkon: 4,14 m2 | ‑ | nie | zapytaj o cenę | wolne | |
| M7 K8 | 65,11 m2 | pierwsze | 3 | balkon: 4,14 m2 | ‑ | nie | zapytaj o cenę | rezerwacja | |
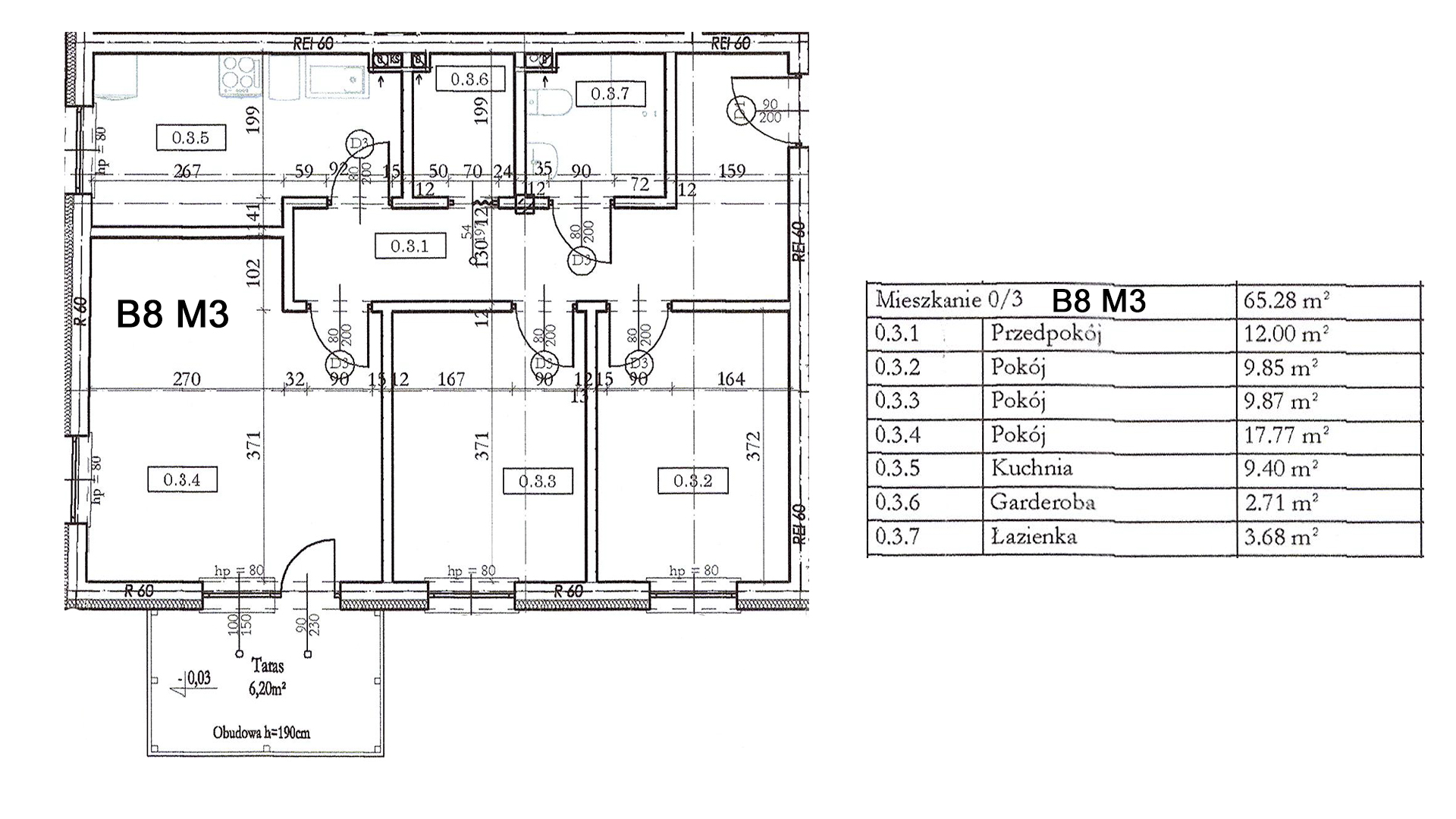
| M3 K8 | 65,28 m2 | parter | 3 | taras: 6,2 m2 | ‑ | nie | zapytaj o cenę | wolne | |
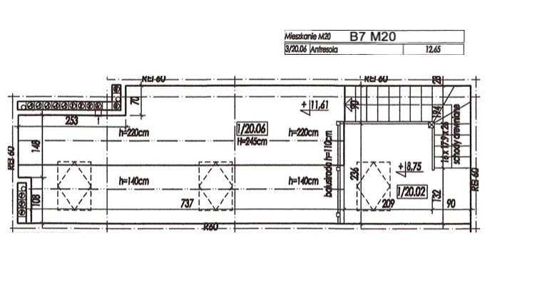
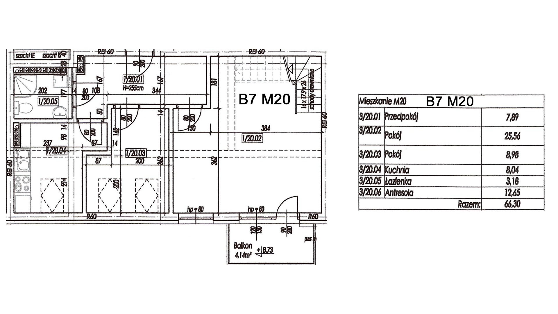
| M20 K7 | 66,30 m2 | trzecie | 3 | balkon: 4,14 m2 | 12,65 m2 | nie | zapytaj o cenę | wolne | |
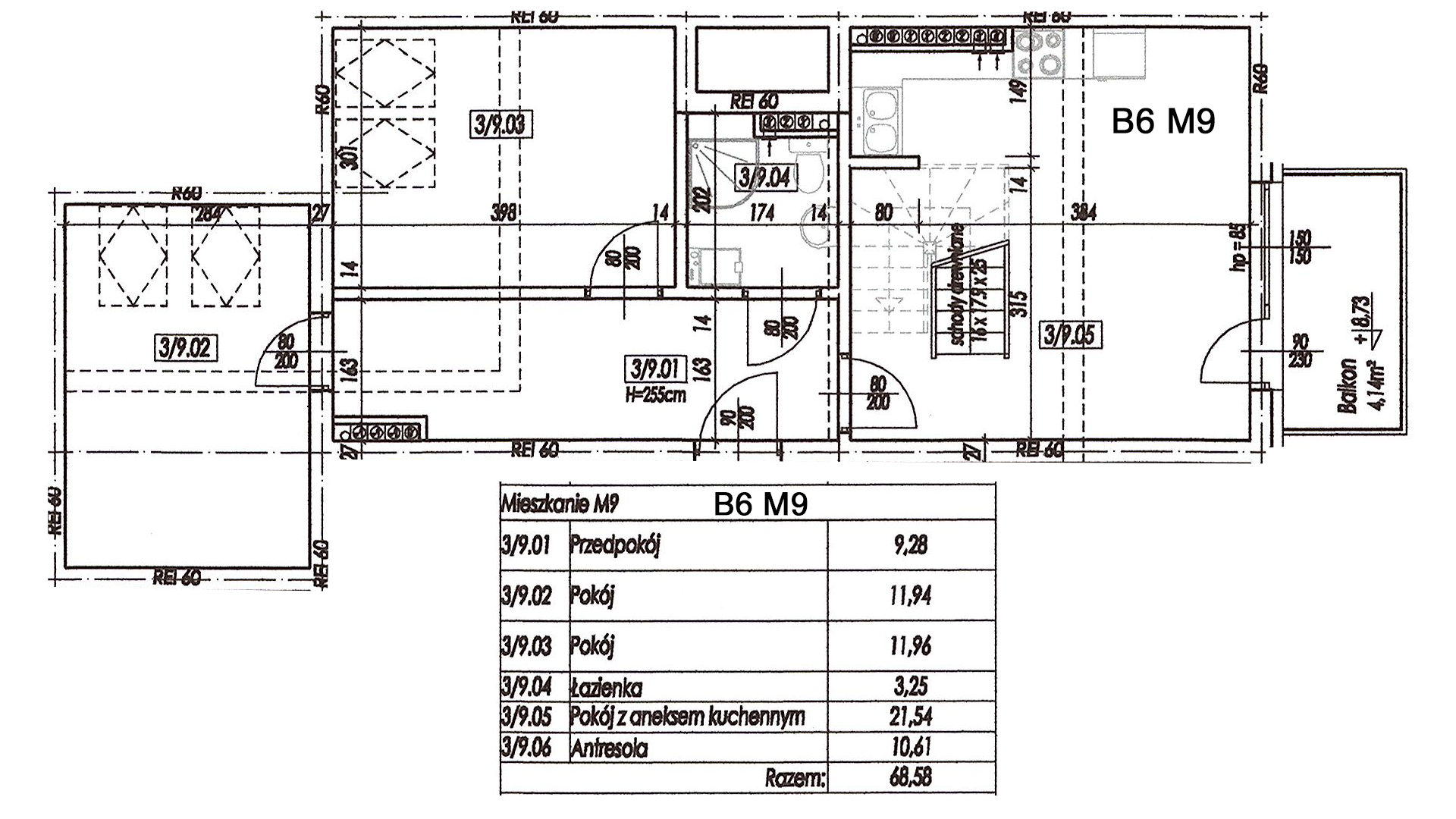
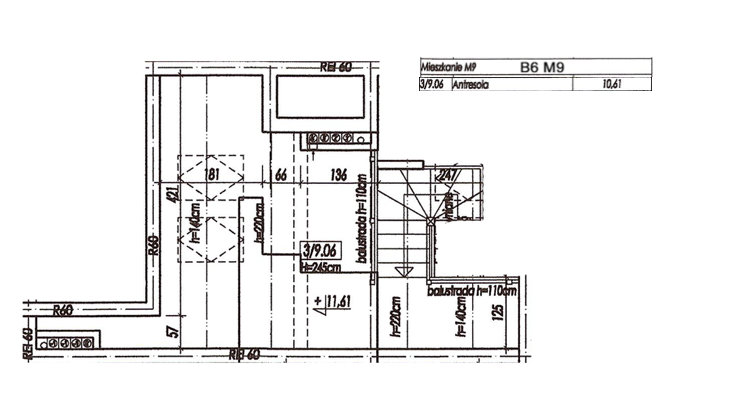
| M9 K6 | 68,58 m2 | trzecie | 4 | balkon: 4,14 m2 | 10,61 m2 | tak | zapytaj o cenę | wolne | |
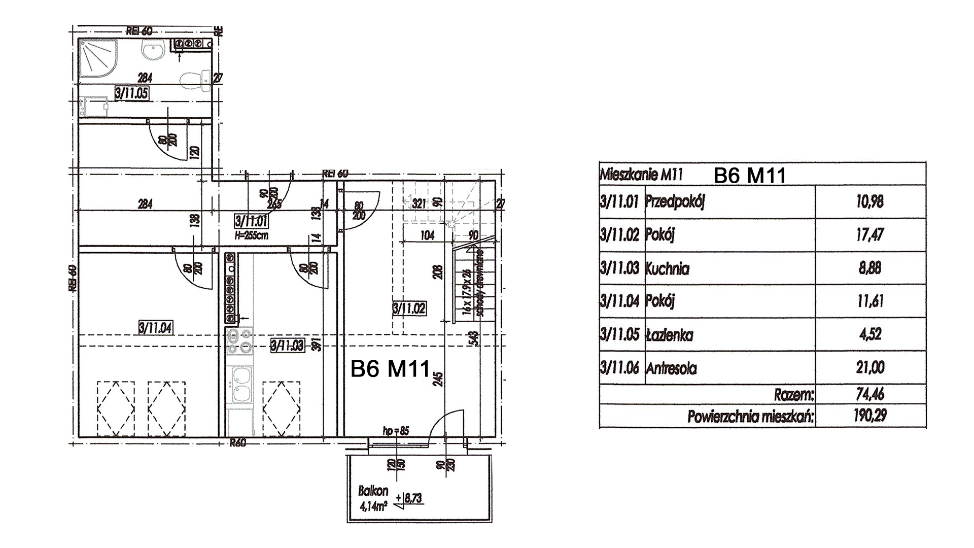
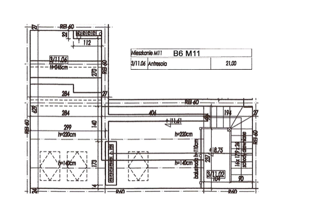
| M11 K6 | 74,46 m2 | trzecie | 3 | balkon: 4,14 m2 | 21 m2 | nie | zapytaj o cenę | wolne | |
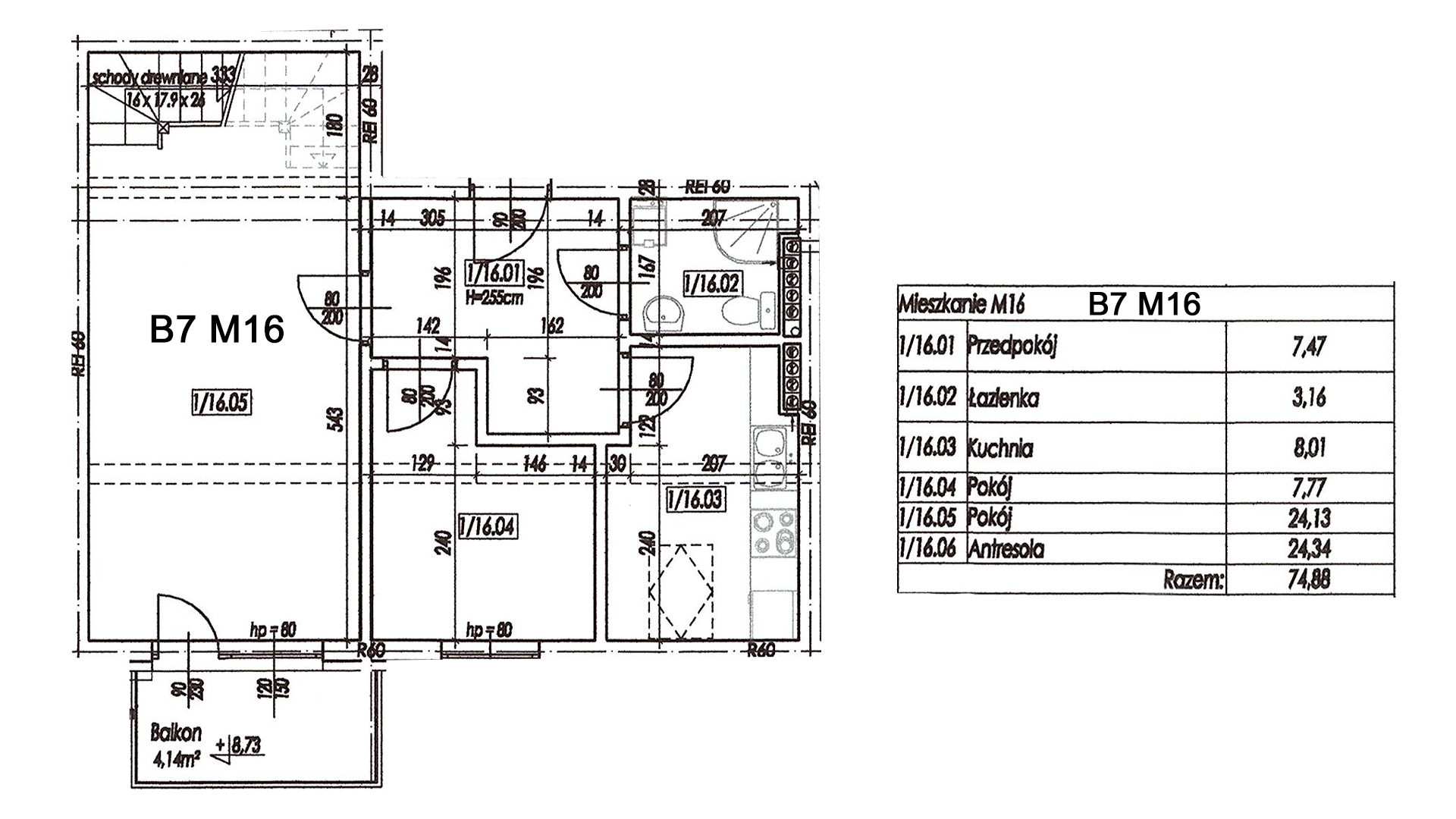
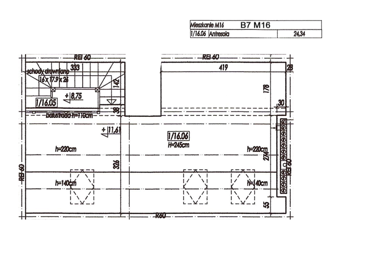
| M16 K7 | 74,88 m2 | trzecie | 3 | balkon: 4,14 m2 | 24,34 m2 | nie | zapytaj o cenę | wolne | |
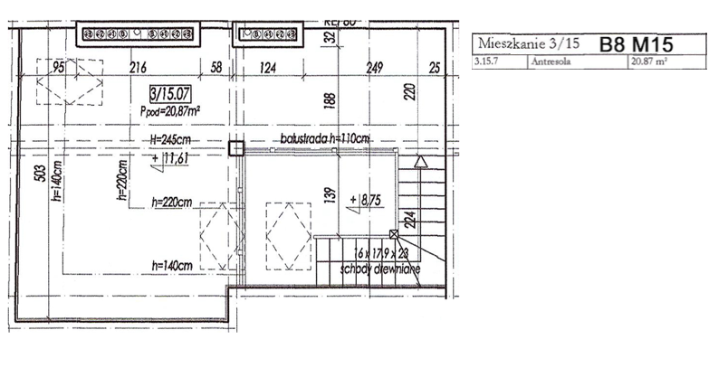
| M15 K8 | 86,33 m2 | trzecie | 4 | balkon: 4,14 m2 | 20,87 m2 | tak | zapytaj o cenę | sprzedane |
